×
Premier coup d'oeil

Descriptif

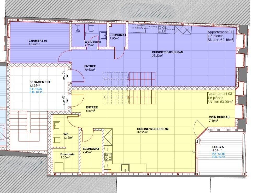
Situé dans une copropriété intimiste de 6 logements, offrez-vous le charme authentique d’un ancien corps de ferme entièrement rénové. Ici, Newhome Services vous présente un appartement 4,5 pièces unique (en jaune sur les plans), conçu pour accueillir une famille en quête de confort et d’authenticité. Ce bien se distingue par sa répartition soigneusement pensée.

Au rez-de-chaussée

  • Un vaste espace de vie avec cuisine ouverte.
  • Une chaleureuse loggia de plus de 9 m²
  • Un WC avec buanderie privative.

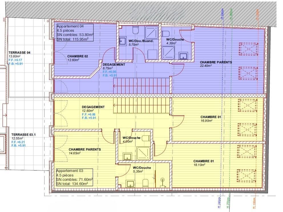
À l’étage, la partie nuit se révèle comme suit :

  • Trois chambres, dont l’une est agrémentée de sa propre salle de bain privative avec douche italienne.
  • Accès terrasse généreuse de 12 m2.
  • Une seconde salle d’eau complète l’ensemble.

Les atouts :

  • Panneaux photovoltaïques et pompe à chaleur géothermique pour des charges réduites.
  • Un local poussette et parking pour vélo.
  • Deux places de parking extérieures compatible pour voiture éclectique.
  • Choix des matériaux

Transports en communs :

  • Bus 670 (devant l'immeuble) jusqu'à Échallens gare ou Yverdon
  • LEB à Échallens

En voiture:

  • 8 minutes de la sortie d’autoroute de Chavornay.
  • 12 minutes d’Yverdon
  • 25 minutes de Lausanne

Ecoles :

Les élèves du primaire sont rattachés à l'Établissement primaire de Villars-le-Terroir – Poliez-Pittet, tandis que les collégiens poursuivent leur scolarité à l'Établissement secondaire d'Échallens – Trois-Sapins. Des bus dédiés assurent le trajet entre Vuarrens et les établissements scolaires.

Formulaire de contact

facultatif